Prodej obchodních prostor, 80 m², ul. Koliště, Brno - Zábrdovice
Brno
Popis nemovitosti
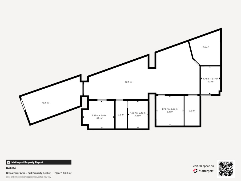
Nabízíme k prodeji nebytový prostor o výměře 80 m², nacházející se v přízemí bytového domu na ulici Koliště (vchod z ulice Ponávka) v městské části Brno–Zábrdovice.
Dispozice:
• vstupní chodba
• hlavní místnost
• 4 samostatné místnosti
• kuchyňka
• koupelna se sprchovým koutem a WC
Prostor je vhodný pro provozování obchodu, kanceláří nebo např. ordinací.
Parkování je možné na ulici přímo před domem.
Nebytový prostor je určen ke kompletní rekonstrukci.
Výhodou je vynikající poloha, jen 2 minuty chůze od centra Brna.
K dispozici dle dohody.
Kde se nemovitost nachází?
Informace o nemovitosti
Naplánujeme prohlídku?
Podobné nemovitosti
Prodej, Komerční Ubytování, 501 m², ul.U Viaduktu, Brno - Chrlice
Představte si, že vlastníte penzion v příjemné lokalitě, kam se hosté rádi vracejí. Chcete rozšířit své podnikání o zavedený podnik, který si už nyní drží vynikající hodnocení na ubytovacích portálech? Pak vítejte v penzionu Ruland! Tento penzion je oázou klidu, obklopen zelení, kde si každý může odpočinout od shonu města. Místo, které si oblíbily především klienti na své služební cesty. Současný majitel vytvořil prostředí s rodinnou atmosférou a skvělým servisem. Teď čeká na nového majitele, který chce pokračovat v jeho tradici nebo vtiskne vlastní styl do tohoto úžasného místa. Penzion je připraven k okamžitému provozu, v roce 2009 byl vystavěn, v roce 2010 otevřen a je kompletně vybaven. Chcete převzít provoz nebo ho přizpůsobit vlastním představám? Tady to můžete mít vše! Provoz penzionu není přerušen a je možné v činnosti plynule pokračovat! Penzion nabízí 13 lůžek v 7 pokojích. Pomocí přistýlek je možné navýšit kapacitu až pro 16 osob. Personál má vlastní zázemí, a pro hosty je připraveno parkoviště s kapacitou pro 12 vozů. Restaurace pojme až 26 hostů uvnitř a dalších 20 na terase, což přitahuje nejen turisty a výletníky z okolí. Součástí penzionu je i pergola s udírnou a posezením a přilehlá zahrada pro vaše další nápady. Brno láká návštěvníky po celý rok. Penzion je ideální svou polohou, protože se nachází nedaleko dálnice D1, D2 a má výbornou dostupnost do centra města. Ať už sníte o provozování penzionu, rodinném sídle v přírodě nebo skvělé investici, toto místo nabízí nekonečné možnosti. Prohlédněte si penzion, nadechněte se jeho jedinečné atmosféry a nechte se inspirovat. Máte pocit, že tohle je vaše příležitost? Přijeďte a poznejte kouzlo tohoto místa na vlastní oči.
Prodej, Komerční Prostor, 1061 m², ul.tř. Masarykova, Veselí nad Moravou
Nabízíme k prodeji unikátní multifunkční budovu s obrovským potenciálem, nacházející se přímo u hlavní silnice ve Veselí nad Moravou. Tato nemovitost o celkové rozloze 1 061,2 m² je ideální pro investory, podnikatele i developery. Dispozice budovy: 1. nadzemní podlaží - 372,5 m² (dříve provozován bar, možno využít např. pro ordinace, obchodní prostory, showroom apod.) 2. nadzemní podlaží - 369,4 m² (ideální pro kanceláře, coworkingové prostory, zasedací místnosti) 3. nadzemní podlaží - 319,3 m² (možnost vybudování luxusních a prostorných bytů). Díky variabilitě prostor nabízí nekonečné možnosti využití, ať už pro komerční nebo rezidenční účely. Velkou přidanou hodnotou je kryté parkoviště, které poskytuje komfort a bezpečnost pro návštěvníky i rezidenty. Tato budova je skvělou příležitostí pro váš podnikatelský záměr nebo investici do budoucnosti. Nezmeškejte šanci vlastnit tento unikátní objekt! Pro více informací a domluvení prohlídky nás neváhejte kontaktovat! Jana Kutná, Nemovision Reality.
Prodej, Komerční Kanceláře, 501 m², ul.U Viaduktu, Brno - Chrlice
Hledáte vhodné reprezentativní sídlo Vaší společnosti v dobré dostupnosti do centra město nebo dálnice D1? Tento objekt aktuálně fungující jako penzion je možné přestavět a využít jeho široký potenciál pro podnikání nebo například i pro bydlení. Budova je elegantní a reprezentativní, nabízí mnoho možností, jak ji přizpůsobit svým vlastním touhám a představám. Budovu naleznete v Chrlicích odkud se rychle dostanete na dálnice D1 nebo D2. Dojezd z centra Brna trvá přibližně 12 minut. Užitná plocha budovy je 501 m2. Velkou výhodou je průjezd do vnitrobloku, kde naleznete další místa k zaparkování, terasu, pergolu a rozlehlou zahradu o rozloze 1827 m2. V přízemí se aktuálně nachází restaurace, která jde přestavět např. na showroom, nebo obchodní prostor pro možné schůzky s klienty a obchodními partnery. V suterénu se nachází zázemí penzionu (kuchyně, sklady apod.) V 1. a ve 2. patře naleznete 7 plně vybavených pokojů, které lze využít i jako kanceláře. Parkování pro klienty lze řešit před domem, pro zaměstnance za domem v zahradě. S větším zásahem tu můžete vytvořit prakticky cokoli. Co Vás napadá? Jak máte chuť tento prostor využít? Technické parametry: - zateplení budovy i střechy - 2 plynové kondenzační kotle - plastová okna s dvojsklem - klimatizace ve všech pokojích - vzduchotechnika v restauraci a jiné. Pokud vás zajímá více informací, ráda vám poskytnu odkaz na detailní web. Objevte prostor, který nabízí široké možnosti využití pro podnikání i bydlení. Budu se na Vás těšit.
Už vám nikdy nic neunikne
Dostávejte ty nejodolatelnější nabídky a zajímavosti ze světa nemovitostí přímo do svého e-mailu. Přihlaste se k odběru newsletteru.

Pavla Fiurášková