Prodej, Domy Rodinný, 175 m², ul.Lipov, Lipov 56
Lipov
Popis nemovitosti
Každý dům má svůj příběh. A tento dvoupodlažní rodinný dům v srdci Lipova čeká, až napíše další kapitolu právě s vámi.
Za vstupními dveřmi vás přivítá prostorná chodba, která působí vzdušně a domácky zároveň. Odtud vede cesta do sklepa, koupelny, toalety, technické místnosti a také do prostorné kuchyně, která prošla rekonstrukcí. Díky své velikosti se přímo nabízí propojit ji s obývacím pokojem a vytvořit tak místo, kde se bude setkávat celá rodina.
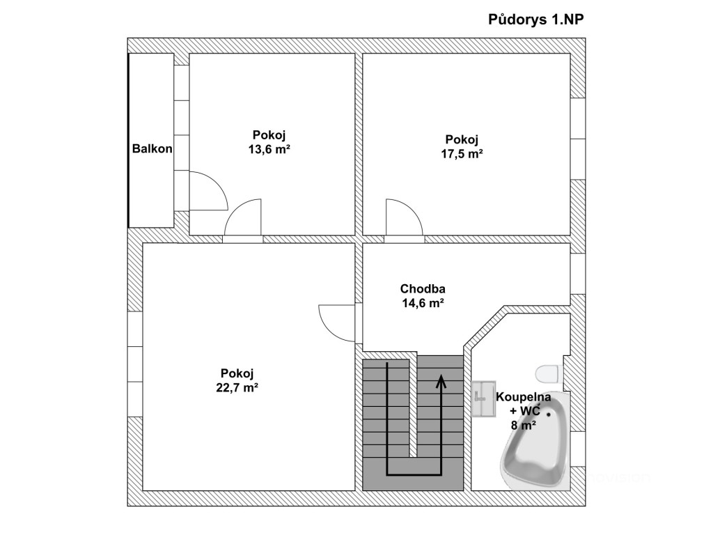
V patře najdete zrekonstruovanou koupelnu, jeden samostatný pokoj a dva průchozí pokoje. Dětský pokoj, pracovna, ložnice… záleží jen na vás, jak si domov uspořádáte.
Za domem na vás čeká útulný dvůr s výměnkem, který se dá proměnit třeba v letní kuchyni, nebo dílnu. Nechybí stodola, ideální na uskladnění techniky. A když projdete dál, otevře se před vámi zahrada, která vám poskytne klid, prostor pro relax i radost z vlastní úrody.
Lipov – místo, kde se dobře žije.
Obec Lipov leží v krásném prostředí Bílých Karpat a vyzařuje atmosféru tradičního moravského venkova. Najdete zde školu, školku, obchody i příležitosti pro sport a volný čas. Lipov je známý svou pohostinností a bohatým kulturním životem. Kousek odtud leží město Strážnice, proslulé folklorem a historickými památkami. Příroda kolem doslova láká k cyklovýletům, procházkám i rodinným dobrodružstvím.
Tento dům v Lipově je více než jen stavba – je to místo, kde může vzniknout váš domov. Prostor, kde budete psát příběhy své rodiny, kde budete trávit čas s přáteli a odkud budete mít každý den kousek blíž k přírodě i sobě samým.
Přijďte se podívat na vlastní oči a přesvědčte se, že tento dům v Lipově může být právě vaším novým domovem. Zavolejte mi a domluvte si prohlídku.
Kde se nemovitost nachází?
Chcete si rovnou spočítat hypotéku?
Informace o nemovitosti
Podobné nemovitosti
Prodej, Domy Rodinný, 166 m², ul.Podsedky, Brno - Bohunice
Krásný den, vítejte ve vyhledávané lokalitě na ulici Podsedky v Brně - Bohunicích. Tato část na jihozápadě statutárního města Brna, je tvořena městskou čtvrtí Bohunice, původně samostatnou obcí, která byla k Brnu připojena v roce 1919. Žije zde přes 14 000 obyvatel a vy můžete být součástí. Rodinný dům je dispozičně řešen jako 4+1, nabízí 3 samostatné prostorné pokoje v patře, s velkou koupelnou jejíž součástí je i sauna. V přízemí se nachází obývací pokoj, vybavená kuchyně, koupelna s plynovým kotlem, toaleta, garáž a obezděná, zastřešená terasa s posezením. Naprosto skvělé bydlení v dosahu kompletní občanské vybavenosti. A to vše na pozemku o celkové rozloze 211 m2. Dostatek světla a slunce a neobyčejné pohodlí. Prostě jedinečná příležitost pro Váš nový začátek. Detailní podrobnosti k dispozici domu najdete v přiložených půdorysech. Dům je vytápěn plynovým kotlem a je připojený na obecní vodovod a kanalizaci. Zahrada je vymyšlená jednoduše a prakticky. Oceníte zde dostatek soukromí a jako bonus venkovní pergola s posezením pro letní grilování. V Brně naleznete kompletní občanskou vybavenost. Výborné dopravní spojení autem, případně MHD do centra, jejíž zastávka je v řádu několika metrů od domu. Je to jednoduché, ozvěte se mi a přijďte se přesvědčit osobně. Brzy na viděnou.
Prodej, Domy Rodinný, 234 m², ul.Trstěnice, Trstěnice, Jihomoravský kraj
Chcete si splnit sen o klidném rodinném bydlení v blízkosti většího města? Pak je tento dům v malebné obci Trstěnice určen právě vám. Dům o dispozici 4+1 a užitné ploše 317 m2 nabízí vše, co můžete pro pohodlný rodinný život požadovat. Navíc jeho poloha na okraji obce vám zajistí naprostý klid a soukromí. Na pozemku o velikosti 3026 m2 se kromě domu nachází ještě jedno stavení určené k rekonstrukci. Nyní slouží jako úložný prostor, ale to neznamená, že z něj nemůže být další obyvatelný prostor např. pro hosty nebo děti. Lze jej vnímat rovněž jako investiční příležitost, pokud byste se rozhodli pro rozdělení pozemku a následný prodej. Trstěnice jsou přibližně 25 minut jízdy od Znojma a 45 minut od Brna. Naleznete zde obchod s potravinami, základní a mateřskou školu, malou hospůdku a autobusovou zastávku. Využijte možnosti prohlédnout si dům pohodlně z pohodlí vašeho domova prostřednictvím 3D scanu, nebo se přijeďte podívat na tento mimořádný dům a přesvědčit se o všech jeho výhodách na vlastní oči, ráda vás zde uvítám. Budu se na vás těšit.
Prodej, Domy Rodinný, 81 m², ul.Domky, Bojkovice
Nabízíme k prodeji jedinečný dům v malebných Bojkovicích, který se pyšní nádherným výhledem na Zámek Nový Světlov. Tento dům, se nachází v okrese Uherské hradiště ve Zlínském kraji, je ideálním místem pro všechny, kteří hledají klidné a harmonické bydlení v blízkosti přírody a kultury. Bojkovice se nacházejí 12km východně od Uherského Brodu, v údolí řeky Olšavy, obklopené Bílými Karpaty, nedaleko hranic se Slovenskem. Dům je dispozičně řešen jako 4+1, což poskytuje dostatek prostoru pro rodinu nebo možnost realizace více projektů. Možnost půdní vestavby přidá na atraktivitě. Budoucí majitel, tak může maximálně využít dostatek prostoru. Dvůr je rozdělen na dvě části: ve spodní části najdete sklep a stavení, které lze využít jako úložiště pro zahradní nábytek, nebo jiné potřeby. Horní část dvora nabízí skleník, stavení pro zvířata a volnou travnatou plochu ideální pro relaxaci. Na dvoře domu se nachází praktická dílna s připojením elektřiny a vody, kterou lez využít pro různé účely například pro menší řemeslnou výrobu nebo jako prosto pro skladování a údržbu. Dům dává novému majiteli jedinečnou příležitost přizpůsobit bydlení podle vlastníc představ a vkusu, místo je výborně dostupné a nabízí široké možnosti pro volnočasové aktivity - od turistických tras, okolních parcích Bílých Karpat po kulturní akce. Pokud hledáte místo, kde si můžete splnit svůj sen o ideálním bydlení, neváhejte a kontaktuje nás pro více informací. Tato nemovitost nabízí neomezené možnosti a čeká na svého nového majitele, který ocení krásu a potenciál, kterým Bojkovice oplývají. Neváhejte si sjednat prohlídku tohoto domu v klidné lokalitě. Jsem zde pro Vás. Jana Kutná Vaše realitní makléřka za Nemovision reality
Už vám nikdy nic neunikne
Dostávejte ty nejodolatelnější nabídky a zajímavosti ze světa nemovitostí přímo do svého e-mailu. Přihlaste se k odběru newsletteru.

Jana Kutná