Prodej, Byty 2+1, 52 m², ul.Smetanova, Strážnice
Strážnice
Popis nemovitosti
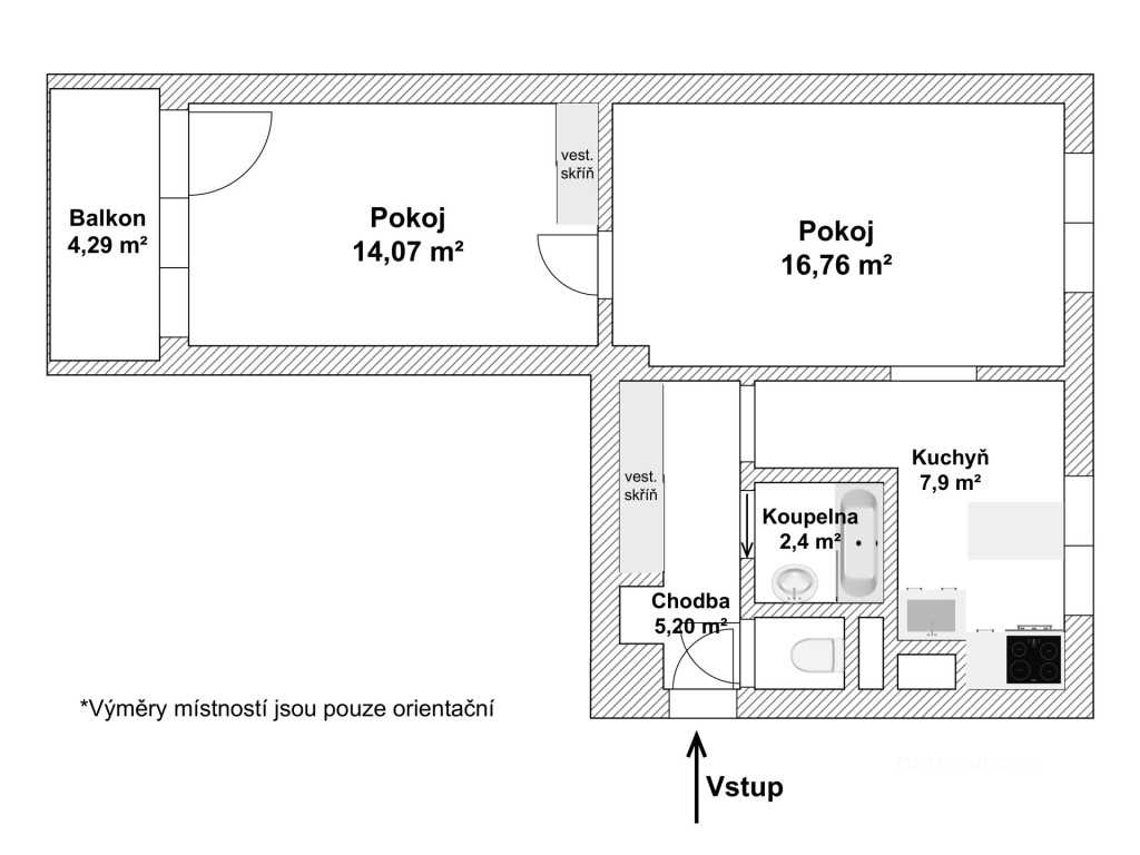
Hledáte bydlení v klidné části Strážnice, a přitom chcete mít vše na dosah? Tento byt o dispozici 2+1 s balkonem vás osloví svou praktičností, útulnou atmosférou i skvělou polohou.
Nachází se v 1. patře bytového domu a hned při vstupu vás přivítá prostorná chodba s vestavěnou skříní, která nabízí dostatek úložného prostoru. Koupelna a toaleta jsou samostatné, což oceníte v každodenním provozu.
Kuchyně je chytře řešená tak, aby vše bylo po ruce, a navazuje na dva průchozí pokoje, které si můžete snadno přizpůsobit svým potřebám – například na obývací pokoj a ložnici. Původní dispozici navíc umožňuje obnovení samostatného vstupu do ložnice.
K bytu náleží dva prostorné sklepy a nové, zvětšené balkony, které poskytují příjemné místo k posezení – ideální na ranní kávu nebo večerní skleničku vína.
Bytový dům se nachází v tiché lokalitě s příjemným okolím, za domem najdete dětské hřiště a v pěší vzdálenosti je náměstí, obchody i park.
Strážnice je město s jedinečnou atmosférou, obklopené přírodou, vinohrady a cyklostezkami. Místo, kde se snoubí klidné bydlení s aktivním životním stylem.
Pokud vás tento byt zaujal, ráda vás provedu osobně.
Těším se na setkání
Jana Kutná, realitní makléřka
Kde se nemovitost nachází?
Informace o nemovitosti
Naplánujeme prohlídku?
Podobné nemovitosti
Prodej bytu 3+1 s garáží a zahradou, Kyjov
Jedinečný byt v Kyjově s možností rozšíření až na 126 m²! Hledáte prostor, který si upravíte přesně podle svých představ? Pak právě pro vás máme tuto výjimečnou nabídku! V klidné části Kyjova, na ulici Růžová, nabízíme k prodeji byt o dispozici 3+1, který je vhodný pro kompletní rekonstrukci. Získáte tak možnost vytvořit si domov na míru – přesně podle svých přání a potřeb. A to nejlepší? Součástí nemovitosti je možnost přístavby, která může obytnou plochu rozšířit až na 126 m²! Tím se z bytu stává atraktivní řešení i pro větší rodiny. Hlavní benefity této nabídky: - Dispozice 3+1 – skvělá volba pro rodinné bydlení. - Možnost přístavby – rozšíření až na 126 m². - Vlastní garáž s montážní jámou – ideální pro kutily a nebo milovníky aut. - Další parkovací místo ve vlastním vjezdu. - Balkon – ideální místo na ranní kávu - Vlastní zahrádka za domem – pro relaxaci, pěstování nebo dětské radovánky. - Společná terasa – perfektní na grilování a sousedské posezení. Lokalita, která vás nadchne! Klidné a přátelské prostředí. V pěší dostupnosti školka, hřiště, obchody i vlakové nádraží. V blízkosti fotbalový stadion, městský park a krytý bazén Taková příležitost se v Kyjově často nenaskytne. Pokud hledáte prostor s potenciálem, který si přetvoříte k obrazu svému, neváhejte nás kontaktovat a domluvte si prohlídku.
Prodej, Byty 4+kk, 89 m², ul.Dětkovice, Dětkovice, Jihomoravský kraj
Prodej mezonetového bytu 4+kk s parkovacím stáním a zahradou Nabízíme k prodeji moderní bytovou jednotku o dispozici 4+kk s užitnou plochou 89 m², nacházející se ve třípodlažní novostavbě v klidné obci Dětkovice u Vyškova. Projekt čítá pouze tři bytové jednotky, což zajišťuje dostatek soukromí i klidné bydlení s atmosférou rodinného domu. Dispozice bytu: 2. NP: vstupní chodba (3,32 m²), prostorný obývací pokoj s kuchyňským koutem (33,9 m²), koupelna s WC (6,6 m²), schodiště 3. NP: ložnice (14,4 m²), pracovna (10,1 m²), dětský pokoj (15,3 m²), chodba (5,6 m²) Výhody nemovitosti: • novostavba s energetickou třídou B • úsporné elektrické podlahové vytápění • kvalitní izolační trojskla a zateplená obálka budovy • k bytu náleží vlastní parkovací stání a zahrádka Lokalita: Obec Dětkovice se nachází pouhých 5 km od Vyškova a v těsné blízkosti nájezdu na dálnici D1. V nedalekých Ivanovicích na Hané je k dispozici kompletní občanská vybavenost (obchody, školy, školka, zdravotní služby). Výborná dopravní dostupnost směr Brno, Prostějov či Kroměříž dělá z lokality ideální místo pro každodenní dojíždění. Byt je vhodný pro rodinné bydlení i pro všechny, kteří hledají kombinaci moderní architektury a klidného venkovského prostředí. Pro více informací a prohlídku nemovitosti mě neváhejte kontaktovat. Budu se těšit.
Prodej, Byty 3+1, 84 m², ul.Průmyslová, Uherské Hradiště
Prodej bytu 3+1 s lodžií – klidné bydlení s potenciálem Hledáte byt, který si můžete upravit podle svých představ? Tento byt o dispozici 3+1 a užitné ploše 84 m² nabízí ideální kombinaci klidu, prostoru a výborné dostupnosti do centra města. Nachází se v prvním zvýšeném podlaží bytového domu a zaujme především svou velkorysou dispozicí a prostornou lodžií, kde si můžete užít ranní kávu nebo večerní pohodu. Byt je v původním, ale velmi udržovaném stavu – skvělá příležitost pro ty, kdo hledají poctivě postavené bydlení s možností moderní rekonstrukce dle vlastního stylu. Dispozice bytu Ze vstupní chodby se dostanete do všech místností samostatně – obývacího pokoje, dvou ložnic, kuchyně, koupelny a samostatného WC. K bytu náleží také prostorná sklepní kóje (4,2 m²), která nabízí další úložný prostor. K dispozici je také prádelna, dílna nebo jiné společné prostory. Výhody bytu • Velká užitná plocha 84 m² – dostatek prostoru pro rodinu i práci z domova. • Světlý interiér s možností úprav podle vašich představ. • První zvýšené podlaží – pohodlný přístup bez nutnosti výtahu. • Prostorná lodžie – ideální místo pro relax. • Bezproblémové parkování přímo u domu. Lokalita – ul. Průmyslová, Uherské Hradiště Tichá a zelená část města s plnou občanskou vybaveností – v blízkosti najdete školu, školku, obchody, zastávku MHD i restaurace. Nedaleko se nachází Baťův kanál, cyklostezky kolem Moravy a park Rochus – ideální prostředí pro aktivní život i odpočinek. Byt je vhodný jak pro rodinné bydlení, tak jako investice do rekonstrukce. Ráda vás provedu osobně a zodpovím veškeré otázky. Neváhejte mě kontaktovat – možná právě tady začíná váš nový domov.
Už vám nikdy nic neunikne
Dostávejte ty nejodolatelnější nabídky a zajímavosti ze světa nemovitostí přímo do svého e-mailu. Přihlaste se k odběru newsletteru.

Jana Kutná