Prodej, Domy Rodinný, ul.Jundrovská, Brno - Komín
Brno
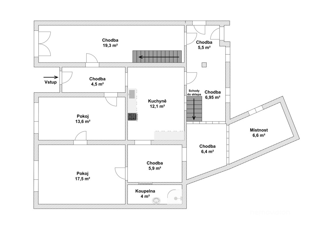
Popis nemovitosti
Hledáte nemovitost s mimořádným potenciálem v jedné z nejžádanějších brněnských čtvrtí?
Představujeme vám přízemní rodinný dům v Brně–Komíně, který nabízí široké možnosti využití. Může se stát základem pro velkorysé rodinné bydlení, zajímavým investičním záměrem, ale také atraktivním developerským projektem.
Dům se nachází v atraktivní lokalitě Komín, která je vyhledávaná pro své klidné rezidenční prostředí a vynikající dostupnost do centra Brna. Stavba je vhodná k rozsáhlé rekonstrukci, případně k realizaci kompletního developerského projektu. Praktickým benefitem je i průjezd na zahradu, který umožňuje pohodlný příjezd až na pozemek – ideální pro parkování nebo logistiku případné výstavby.
Nemovitost nabízí také možnost vytvořit až šest moderních bytových jednotek. Zahrada ve vnitrobloku má příjemnou atmosféru a lze ji využít k odpočinku, jako soukromé rodinné zázemí nebo jako součást budoucího projektu.
Dům je ideální volbou pro rodiny, které hledají prostor pro vytvoření svého vysněného a nadstandardního bydlení. Zároveň je skvělou příležitostí pro developery, kteří chtějí realizovat projekt v žádané části Brna, kde se podobné nemovitosti objevují na trhu skutečně výjimečně.
Pokud vás tato nabídka zaujala, ráda vás provedu a představím všechny možnosti využití. Neváhejte mě kontaktovat pro domluvení prohlídky.
Kde se nemovitost nachází?
Chcete si rovnou spočítat hypotéku?
Informace o nemovitosti
Podobné nemovitosti
Prodej, Domy Rodinný, 166 m², ul.Podsedky, Brno - Bohunice
Krásný den, vítejte ve vyhledávané lokalitě na ulici Podsedky v Brně - Bohunicích. Tato část na jihozápadě statutárního města Brna, je tvořena městskou čtvrtí Bohunice, původně samostatnou obcí, která byla k Brnu připojena v roce 1919. Žije zde přes 14 000 obyvatel a vy můžete být součástí. Rodinný dům je dispozičně řešen jako 4+1, nabízí 3 samostatné prostorné pokoje v patře, s velkou koupelnou jejíž součástí je i sauna. V přízemí se nachází obývací pokoj, vybavená kuchyně, koupelna s plynovým kotlem, toaleta, garáž a obezděná, zastřešená terasa s posezením. Naprosto skvělé bydlení v dosahu kompletní občanské vybavenosti. A to vše na pozemku o celkové rozloze 211 m2. Dostatek světla a slunce a neobyčejné pohodlí. Prostě jedinečná příležitost pro Váš nový začátek. Detailní podrobnosti k dispozici domu najdete v přiložených půdorysech. Dům je vytápěn plynovým kotlem a je připojený na obecní vodovod a kanalizaci. Zahrada je vymyšlená jednoduše a prakticky. Oceníte zde dostatek soukromí a jako bonus venkovní pergola s posezením pro letní grilování. V Brně naleznete kompletní občanskou vybavenost. Výborné dopravní spojení autem, případně MHD do centra, jejíž zastávka je v řádu několika metrů od domu. Je to jednoduché, ozvěte se mi a přijďte se přesvědčit osobně. Brzy na viděnou.
Prodej, Domy Rodinný, 234 m², ul.Trstěnice, Trstěnice, Jihomoravský kraj
Chcete si splnit sen o klidném rodinném bydlení v blízkosti většího města? Pak je tento dům v malebné obci Trstěnice určen právě vám. Dům o dispozici 4+1 a užitné ploše 317 m2 nabízí vše, co můžete pro pohodlný rodinný život požadovat. Navíc jeho poloha na okraji obce vám zajistí naprostý klid a soukromí. Na pozemku o velikosti 3026 m2 se kromě domu nachází ještě jedno stavení určené k rekonstrukci. Nyní slouží jako úložný prostor, ale to neznamená, že z něj nemůže být další obyvatelný prostor např. pro hosty nebo děti. Lze jej vnímat rovněž jako investiční příležitost, pokud byste se rozhodli pro rozdělení pozemku a následný prodej. Trstěnice jsou přibližně 25 minut jízdy od Znojma a 45 minut od Brna. Naleznete zde obchod s potravinami, základní a mateřskou školu, malou hospůdku a autobusovou zastávku. Využijte možnosti prohlédnout si dům pohodlně z pohodlí vašeho domova prostřednictvím 3D scanu, nebo se přijeďte podívat na tento mimořádný dům a přesvědčit se o všech jeho výhodách na vlastní oči, ráda vás zde uvítám. Budu se na vás těšit.
Prodej, Domy Rodinný, 81 m², ul.Domky, Bojkovice
Nabízíme k prodeji jedinečný dům v malebných Bojkovicích, který se pyšní nádherným výhledem na Zámek Nový Světlov. Tento dům, se nachází v okrese Uherské hradiště ve Zlínském kraji, je ideálním místem pro všechny, kteří hledají klidné a harmonické bydlení v blízkosti přírody a kultury. Bojkovice se nacházejí 12km východně od Uherského Brodu, v údolí řeky Olšavy, obklopené Bílými Karpaty, nedaleko hranic se Slovenskem. Dům je dispozičně řešen jako 4+1, což poskytuje dostatek prostoru pro rodinu nebo možnost realizace více projektů. Možnost půdní vestavby přidá na atraktivitě. Budoucí majitel, tak může maximálně využít dostatek prostoru. Dvůr je rozdělen na dvě části: ve spodní části najdete sklep a stavení, které lze využít jako úložiště pro zahradní nábytek, nebo jiné potřeby. Horní část dvora nabízí skleník, stavení pro zvířata a volnou travnatou plochu ideální pro relaxaci. Na dvoře domu se nachází praktická dílna s připojením elektřiny a vody, kterou lez využít pro různé účely například pro menší řemeslnou výrobu nebo jako prosto pro skladování a údržbu. Dům dává novému majiteli jedinečnou příležitost přizpůsobit bydlení podle vlastníc představ a vkusu, místo je výborně dostupné a nabízí široké možnosti pro volnočasové aktivity - od turistických tras, okolních parcích Bílých Karpat po kulturní akce. Pokud hledáte místo, kde si můžete splnit svůj sen o ideálním bydlení, neváhejte a kontaktuje nás pro více informací. Tato nemovitost nabízí neomezené možnosti a čeká na svého nového majitele, který ocení krásu a potenciál, kterým Bojkovice oplývají. Neváhejte si sjednat prohlídku tohoto domu v klidné lokalitě. Jsem zde pro Vás. Jana Kutná Vaše realitní makléřka za Nemovision reality
Už vám nikdy nic neunikne
Dostávejte ty nejodolatelnější nabídky a zajímavosti ze světa nemovitostí přímo do svého e-mailu. Přihlaste se k odběru newsletteru.

Pavla Šimková