Prodej, Domy Rodinný, 105 m², ul.Metelkova, Kuřim
Kuřim
Popis nemovitosti
Nabízíme k prodeji příjemný rodinný dům v oblíbené lokalitě města Kuřim, který je ideálním místem pro rodinný život v blízkosti přírody, a přitom s výbornou dostupností do Brna.
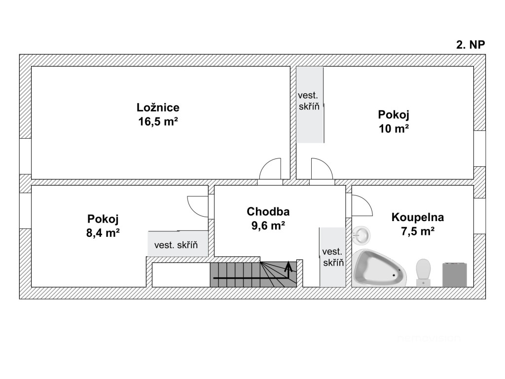
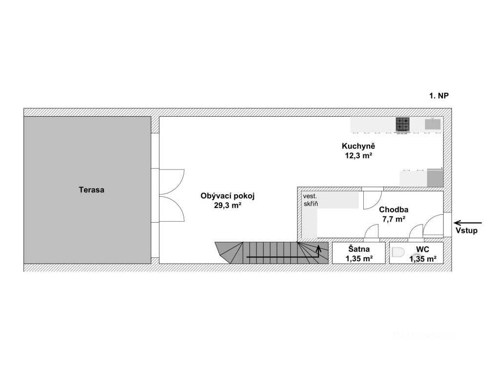
Dům o dispozici 4+kk byl zkolaudován v roce 2002 a prošel řadou modernizací. V přízemí najdete prostorný obývací pokoj propojený s kuchyňským koutem, šatnu a samostatnou toaletu. V patře se nachází tři ložnice, které poskytují dostatek prostoru a soukromí všem členům domácnosti. Celková užitná plocha domu činí 105 m² a každý detail zde byl navržen s ohledem na pohodlí a funkčnost.
Dům je pečlivě udržovaný a připravený k okamžitému nastěhování. V roce 2019 byla kompletně vyměněna okna za nová s trojskly, zateplení, fasáda a položena nová střešní krytina. O další komfort se postará nový plynový kondenzační kotel a moderní kuchyňská linka, obojí z roku 2023.
Součástí domu je příjemná terasa se zahradou, která poskytuje prostor pro relaxaci, dětské hry nebo letní grilování. Pozemek má celkovou výměru 252 m² a před domem se nachází praktické parkování na vlastním pozemku pod krytým přístřeškem.
Kuřim nabízí vynikající občanskou vybavenost – najdete zde školy, školky, obchody, zdravotnická zařízení, sportoviště i kulturní vyžití. Díky vlakovému spojení, autobusům i rychlému dojezdu autem je spojení do Brna naprosto bezproblémové.
Tento dům není jen nemovitost. Je to místo, kde budete tvořit nové vzpomínky, kam se budete rádi vracet a kde najdete opravdový domov.
Ráda Vás provedu osobně, ukážu všechny přednosti tohoto domu a zodpovím Vaše dotazy.
Neváhejte mě kontaktovat — možná právě tady začíná Váš nový příběh.
Kde se nemovitost nachází?
Chcete si rovnou spočítat hypotéku?
Informace o nemovitosti
Naplánujeme prohlídku?
Podobné nemovitosti
Prodej, Domy Rodinný, 160 m², ul.Kněždub, Kněždub
Hledáte místo, kde si můžete postavit svůj vysněný rodinný dům? Toužíte po klidném prostředí, ale zároveň nechcete ztratit výhodu dobré dostupnosti městské infrastruktury? Pak vás tato nabídka zaujme. Exkluzivně nabízíme stavební pozemek s domem určeným k celkové rekonstrukci nebo demolici, který otevírá prostor vytvořit si domácí zázemí přesně podle vašich představ. Pozemek se nachází v klidné části obce Kněždub, odkud to máte pouhých 8 km do města Strážnice – ideální kombinace venkovské atmosféry a blízkosti veškeré občanské vybavenosti. Nemovitost je napojena na všechny potřebné inženýrské sítě a nabízí uliční šíři 13 metrů, což poskytuje skvělé možnosti pro budoucí výstavbu i dispoziční řešení. Tento pozemek je výbornou příležitostí pro ty, kteří hledají místo s potenciálem, dobrou dostupností a příjemným okolím. Máte zájem o více informací nebo si chcete domluvit osobní prohlídku? Neváhejte mě kontaktovat.
Prodej rodinného domu, 120 m², pozemek 211 m², Tvarožná Lhota
Nabízíme k prodeji nádhernou, stylovou a plně vybavenou chalupu, která se nachází na klidném horním konci obce Tvarožná Lhota, v malebném podhůří Bílých Karpat. Tato nemovitost je ideální jak pro ty, kteří hledají útulné rodinné bydlení v krásném prostředí, tak i pro investory, kteří chtějí okamžitě začít s pronájmem bez jakýchkoli dalších vstupních nákladů. Chalupa je ve výborném technickém stavu a prodává se kompletně zařízená. Stačí si přivézt osobní věci a začít bydlet, nebo ihned pronajímat. Objekt nabízí pohodlné ubytování pro 4 až 8 osob. V patře se nacházejí dvě průchozí ložnice s celkem pěti lůžky, v přízemí je společenská místnost s dalšími třemi lůžky. K dispozici je vybavená kuchyň, koupelna s vanou a toaletou v přízemí, další WC se nachází v patře. Chalupa je vytápěna plynovým kotlem, což umožňuje celoroční využití. Velkou výhodou je ovládání kotle na dálku, v zimě tak přijedete do vyhřátého domu. Zahrada nabízí příjemné posezení pod pergolou a možnost grilování. Velkým bonusem je stylový vinný sklípek přímo v objektu, který potěší nejen majitele, ale i případné návštěvníky. Lokalita je mimořádně atraktivní – v blízkosti se nachází rekreační nádrž Lučina, historické město Strážnice s folklorním skanzenem, zámkem a Baťovým kanálem, proslulé vinné sklepy Plže v Petrově, a především oblíbená rozhledna Travičná se zábavním parkem a trail parkem pro cyklisty, který je od chalupy vzdálen pouhých 800 metrů. Okolí je jako stvořené pro pěší túry, cyklistiku, koupání, vinařskou turistiku i poznávání bohaté moravské kultury. V létě se zde konají tradiční folklórní slavnosti, a díky množství turistických cílů je oblast vyhledávanou destinací po celý rok. Chalupa je perfektní volbou pro každého, kdo touží po místě s duší, příběhem a potenciálem. Ať už hledáte klidné útočiště pro sebe a rodinu, nebo příležitost, která začne vydělávat hned od prvního dne, tato nemovitost Vám nabídne obojí. Nevyžaduje žádné další investice, je ihned obyvatelná a připravená sloužit svému novému majiteli. V případě zájmu nás neváhejte kontaktovat. Rádi Vám poskytneme další informace a domluvíme osobní prohlídku. Taková příležitost se objevuje jen zřídka.
Prodej chalupy, 120 m², pozemek 211 m², Tvarožná Lhota
Nabízíme k prodeji nádhernou, stylovou a plně vybavenou chalupu, která se nachází na klidném horním konci obce Tvarožná Lhota, v malebném podhůří Bílých Karpat. Tato nemovitost je ideální jak pro ty, kteří hledají útulné rodinné bydlení v krásném prostředí, tak i pro investory, kteří chtějí okamžitě začít s pronájmem bez jakýchkoli dalších vstupních nákladů. Chalupa je ve výborném technickém stavu a prodává se kompletně zařízená. Stačí si přivézt osobní věci a začít bydlet, nebo ihned pronajímat. Objekt nabízí pohodlné ubytování pro 4 až 8 osob. V patře se nacházejí dvě průchozí ložnice s celkem pěti lůžky, v přízemí je společenská místnost s dalšími třemi lůžky. K dispozici je vybavená kuchyň, koupelna s vanou a toaletou v přízemí, další WC se nachází v patře. Chalupa je vytápěna plynovým kotlem, což umožňuje celoroční využití. Velkou výhodou je ovládání kotle na dálku, v zimě tak přijedete do vyhřátého domu. Zahrada nabízí příjemné posezení pod pergolou a možnost grilování. Velkým bonusem je stylový vinný sklípek přímo v objektu, který potěší nejen majitele, ale i případné návštěvníky. Lokalita je mimořádně atraktivní – v blízkosti se nachází rekreační nádrž Lučina, historické město Strážnice s folklorním skanzenem, zámkem a Baťovým kanálem, proslulé vinné sklepy Plže v Petrově, a především oblíbená rozhledna Travičná se zábavním parkem a trail parkem pro cyklisty, který je od chalupy vzdálen pouhých 800 metrů. Okolí je jako stvořené pro pěší túry, cyklistiku, koupání, vinařskou turistiku i poznávání bohaté moravské kultury. V létě se zde konají tradiční folklórní slavnosti, a díky množství turistických cílů je oblast vyhledávanou destinací po celý rok. Chalupa je perfektní volbou pro každého, kdo touží po místě s duší, příběhem a potenciálem. Ať už hledáte klidné útočiště pro sebe a rodinu, nebo příležitost, která začne vydělávat hned od prvního dne, tato nemovitost Vám nabídne obojí. Nevyžaduje žádné další investice, je ihned obyvatelná a připravená sloužit svému novému majiteli. V případě zájmu nás neváhejte kontaktovat. Rádi Vám poskytneme další informace a domluvíme osobní prohlídku. Taková příležitost se objevuje jen zřídka.
Už vám nikdy nic neunikne
Dostávejte ty nejodolatelnější nabídky a zajímavosti ze světa nemovitostí přímo do svého e-mailu. Přihlaste se k odběru newsletteru.

Pavla Šimková