Prodej, Domy Rodinný, 270 m², ul.Žeravice, Žeravice
Žeravice
Popis nemovitosti
V klidné obci Žeravice u Kyjova nabízíme k prodeji rodinný dům, který zaujme nejen svou velikostí a dispozicí, ale především variabilitou využití a atmosférou skutečného domova. Jedná se o nemovitost, která dává prostor představám – ať už hledáte místo pro rodinu, více generací pod jednou střechou, nebo dům s investičním potenciálem.
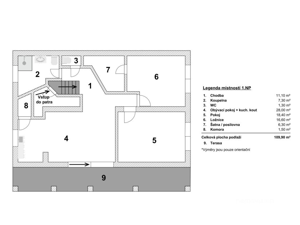
Dům je rozdělen do tří samostatných bytových jednotek, díky čemuž nabízí naprostou flexibilitu využití. V přízemí se nachází dvě bytové jednotky o dispozici 2+1, které poskytují dostatek prostoru a soukromí. V patře je pak nově vybudovaný byt 3+kk, který působí moderně, vzdušně a je připraven stát se plnohodnotným rodinným bydlením.
Nemovitost prošla postupnou rekonstrukcí, přičemž většina zásadních prací je již hotová. K dokončení zbývá pouze minimum úprav, které si nový majitel může přizpůsobit podle vlastního vkusu a potřeb – a dát tak domu osobní rukopis.
Velkou předností domu je udržovaná zahrada, která nabízí příjemné soukromí a prostor pro odpočinek, rodinná setkání i každodenní relax. K domu dále náleží prostorná garáž až pro tři auta, praktická dílna a také sklep ideální pro skladování ovoce a zeleniny.
Základní informace:
užitná plocha domu: 270 m²
plocha pozemku: 1042 m²
počet bytových jednotek: 3
Tento dům je ideální volbou pro ty, kteří hledají klidné bydlení s možností dalšího využití, ať už formou pronájmu, podnikání z domova nebo vícegeneračního soužití. Spojuje v sobě praktičnost, prostor a potenciál, který se jen tak nevidí.
Projděte si nemovitost pomocí 3D scanu.
Pro více informací nebo domluvení osobní prohlídky mě neváhejte kontaktovat.
Ráda vám dům představím osobně a ukážu vám, co všechno může nabídnout.
Kde se nemovitost nachází?
Chcete si rovnou spočítat hypotéku?
Informace o nemovitosti
Naplánujeme prohlídku?
Podobné nemovitosti
Prodej, Domy Rodinný, 160 m², ul.Kněždub, Kněždub
Hledáte místo, kde si můžete postavit svůj vysněný rodinný dům? Toužíte po klidném prostředí, ale zároveň nechcete ztratit výhodu dobré dostupnosti městské infrastruktury? Pak vás tato nabídka zaujme. Exkluzivně nabízíme stavební pozemek s domem určeným k celkové rekonstrukci nebo demolici, který otevírá prostor vytvořit si domácí zázemí přesně podle vašich představ. Pozemek se nachází v klidné části obce Kněždub, odkud to máte pouhých 8 km do města Strážnice – ideální kombinace venkovské atmosféry a blízkosti veškeré občanské vybavenosti. Nemovitost je napojena na všechny potřebné inženýrské sítě a nabízí uliční šíři 13 metrů, což poskytuje skvělé možnosti pro budoucí výstavbu i dispoziční řešení. Tento pozemek je výbornou příležitostí pro ty, kteří hledají místo s potenciálem, dobrou dostupností a příjemným okolím. Máte zájem o více informací nebo si chcete domluvit osobní prohlídku? Neváhejte mě kontaktovat.
Prodej rodinného domu, 120 m², pozemek 211 m², Tvarožná Lhota
Nabízíme k prodeji nádherný, stylový a plně vybavený rodinný dům, který se nachází na klidném horním konci obce Tvarožná Lhota, v malebném podhůří Bílých Karpat. Tato nemovitost je ideální jak pro ty, kteří hledají útulné rodinné bydlení v krásném prostředí, tak i pro investory, kteří chtějí okamžitě začít s pronájmem bez jakýchkoli dalších vstupních nákladů. Dům je ve výborném technickém stavu a prodává se kompletně zařízený – stačí si přivézt osobní věci a začít bydlet, nebo jej ihned využít k pronájmu. Nemovitost nabízí pohodlné ubytování pro 4 až 8 osob. V patře se nacházejí dvě průchozí ložnice s celkem pěti lůžky, v přízemí je prostorný obývací pokoj s dalšími třemi lůžky. K dispozici je plně vybavená kuchyň, koupelna s vanou a toaletou v přízemí a další samostatné WC v patře. Dům je vytápěn plynovým kotlem s možností dálkového ovládání, díky čemuž lze pohodlně zajistit vytápění i před příjezdem. Nemovitost je tak vhodná k celoročnímu užívání. Součástí je také zahrada s příjemným posezením pod pergolou a možností grilování. Velkým bonusem je stylový vinný sklípek přímo v domě, který ocení nejen majitelé, ale i jejich návštěvy. Lokalita je mimořádně atraktivní – v blízkosti se nachází rekreační nádrž Lučina, historické město Strážnice s folklorním skanzenem, zámkem a Baťovým kanálem, proslulé vinné sklepy Plže v Petrově a oblíbená rozhledna Travičná se zábavním a trail parkem pro cyklisty, vzdálená pouhých 800 metrů od domu. Okolí je ideální pro pěší turistiku, cyklistiku, koupání i vinařskou turistiku. Díky množství turistických cílů a kulturních akcí je oblast vyhledávaná po celý rok. Tento rodinný dům je perfektní volbou pro každého, kdo hledá bydlení s atmosférou, nebo zajímavou investiční příležitost s okamžitým výnosem. Nemovitost nevyžaduje žádné další investice a je ihned připravena k užívání. V případě zájmu nás neváhejte kontaktovat. Rádi Vám poskytneme více informací a domluvíme osobní prohlídku. Taková příležitost se objevuje jen zřídka.
Prodej chalupy, 120 m², pozemek 211 m², Tvarožná Lhota
Nabízíme k prodeji nádhernou, stylovou a plně vybavenou chalupu, která se nachází na klidném horním konci obce Tvarožná Lhota, v malebném podhůří Bílých Karpat. Tato nemovitost je ideální jak pro ty, kteří hledají útulné rodinné bydlení v krásném prostředí, tak i pro investory, kteří chtějí okamžitě začít s pronájmem bez jakýchkoli dalších vstupních nákladů. Chalupa je ve výborném technickém stavu a prodává se kompletně zařízená. Stačí si přivézt osobní věci a začít bydlet, nebo ihned pronajímat. Objekt nabízí pohodlné ubytování pro 4 až 8 osob. V patře se nacházejí dvě průchozí ložnice s celkem pěti lůžky, v přízemí je společenská místnost s dalšími třemi lůžky. K dispozici je vybavená kuchyň, koupelna s vanou a toaletou v přízemí, další WC se nachází v patře. Chalupa je vytápěna plynovým kotlem, což umožňuje celoroční využití. Velkou výhodou je ovládání kotle na dálku, v zimě tak přijedete do vyhřátého domu. Zahrada nabízí příjemné posezení pod pergolou a možnost grilování. Velkým bonusem je stylový vinný sklípek přímo v objektu, který potěší nejen majitele, ale i případné návštěvníky. Lokalita je mimořádně atraktivní – v blízkosti se nachází rekreační nádrž Lučina, historické město Strážnice s folklorním skanzenem, zámkem a Baťovým kanálem, proslulé vinné sklepy Plže v Petrově, a především oblíbená rozhledna Travičná se zábavním parkem a trail parkem pro cyklisty, který je od chalupy vzdálen pouhých 800 metrů. Okolí je jako stvořené pro pěší túry, cyklistiku, koupání, vinařskou turistiku i poznávání bohaté moravské kultury. V létě se zde konají tradiční folklórní slavnosti, a díky množství turistických cílů je oblast vyhledávanou destinací po celý rok. Chalupa je perfektní volbou pro každého, kdo touží po místě s duší, příběhem a potenciálem. Ať už hledáte klidné útočiště pro sebe a rodinu, nebo příležitost, která začne vydělávat hned od prvního dne, tato nemovitost Vám nabídne obojí. Nevyžaduje žádné další investice, je ihned obyvatelná a připravená sloužit svému novému majiteli. V případě zájmu nás neváhejte kontaktovat. Rádi Vám poskytneme další informace a domluvíme osobní prohlídku. Taková příležitost se objevuje jen zřídka.
Už vám nikdy nic neunikne
Dostávejte ty nejodolatelnější nabídky a zajímavosti ze světa nemovitostí přímo do svého e-mailu. Přihlaste se k odběru newsletteru.

Pavla Šimková