Prodej, Domy Rodinný, 111 m², ul.21. dubna, Valtice
Valtice
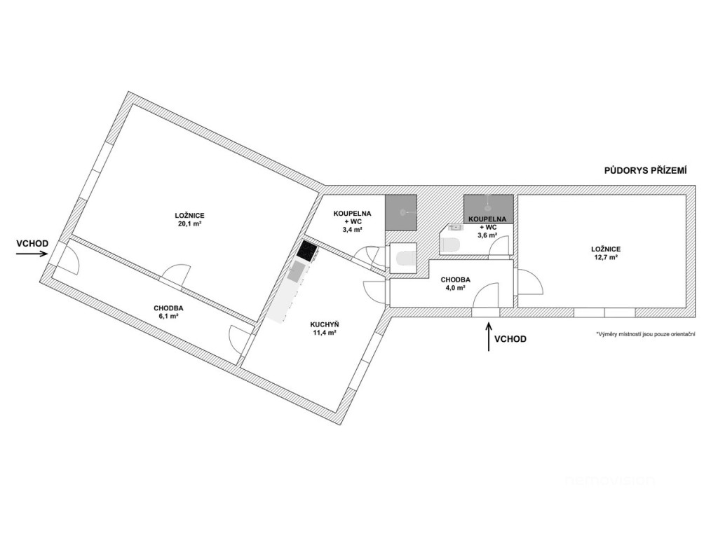
Popis nemovitosti
Valtice - jedna z nejžádanějších vinařských lokalit jižní Moravy. Právě zde nabízíme k prodeji rodinný dům, který díky svému dispozičnímu řešení nabízí široké možnosti využití – zejména pro vícegenerační bydlení, kombinaci bydlení a podnikání nebo částečný pronájem.
Dům je rozdělen na dvě samostatné jednotky (4 apartmány), které lze využívat odděleně i jako jeden celek.
Dispozice a uspořádání
Apartmány 1 a 2:
- vhodné jako hlavní obytná část domu
- sdílená plně vybavená kuchyň
- každý apartmán má vlastní koupelnu (sprchový kout, WC, umyvadlo)
- možnost oddělení uzamykatelnými dveřmi
Apartmány 3 a 4:
- samostatný vstup a chodba
- každý apartmán má vlastní kuchyňku a sociální zázemí
- vhodné pro další členy rodiny, hosty nebo podnikání
Nemovitost je v současnosti využívána ke krátkodobému pronájmu a je možné navázat na stávající provoz.
Lokalita
Valtice jsou součástí Lednicko-valtického areálu a patří mezi nejvyhledávanější lokality jižní Moravy. Nabízí kompletní občanskou vybavenost, výbornou dostupnost a široké možnosti volnočasových aktivit.
Ráda vás provedu touto krásnou nemovitostí. Pro více informací nebo sjednání prohlídky mě neváhejte kontaktovat.
Kde se nemovitost nachází?
Chcete si rovnou spočítat hypotéku?
Informace o nemovitosti
Naplánujeme prohlídku?
Podobné nemovitosti
Prodej, Domy Rodinný, 160 m², ul.Kněždub, Kněždub
Hledáte místo, kde si můžete postavit svůj vysněný rodinný dům? Toužíte po klidném prostředí, ale zároveň nechcete ztratit výhodu dobré dostupnosti městské infrastruktury? Pak vás tato nabídka zaujme. Exkluzivně nabízíme stavební pozemek s domem určeným k celkové rekonstrukci nebo demolici, který otevírá prostor vytvořit si domácí zázemí přesně podle vašich představ. Pozemek se nachází v klidné části obce Kněždub, odkud to máte pouhých 8 km do města Strážnice – ideální kombinace venkovské atmosféry a blízkosti veškeré občanské vybavenosti. Nemovitost je napojena na všechny potřebné inženýrské sítě a nabízí uliční šíři 13 metrů, což poskytuje skvělé možnosti pro budoucí výstavbu i dispoziční řešení. Tento pozemek je výbornou příležitostí pro ty, kteří hledají místo s potenciálem, dobrou dostupností a příjemným okolím. Máte zájem o více informací nebo si chcete domluvit osobní prohlídku? Neváhejte mě kontaktovat.
Prodej rodinného domu, 120 m², pozemek 211 m², Tvarožná Lhota
Nabízíme k prodeji nádhernou, stylovou a plně vybavenou chalupu, která se nachází na klidném horním konci obce Tvarožná Lhota, v malebném podhůří Bílých Karpat. Tato nemovitost je ideální jak pro ty, kteří hledají útulné rodinné bydlení v krásném prostředí, tak i pro investory, kteří chtějí okamžitě začít s pronájmem bez jakýchkoli dalších vstupních nákladů. Chalupa je ve výborném technickém stavu a prodává se kompletně zařízená. Stačí si přivézt osobní věci a začít bydlet, nebo ihned pronajímat. Objekt nabízí pohodlné ubytování pro 4 až 8 osob. V patře se nacházejí dvě průchozí ložnice s celkem pěti lůžky, v přízemí je společenská místnost s dalšími třemi lůžky. K dispozici je vybavená kuchyň, koupelna s vanou a toaletou v přízemí, další WC se nachází v patře. Chalupa je vytápěna plynovým kotlem, což umožňuje celoroční využití. Velkou výhodou je ovládání kotle na dálku, v zimě tak přijedete do vyhřátého domu. Zahrada nabízí příjemné posezení pod pergolou a možnost grilování. Velkým bonusem je stylový vinný sklípek přímo v objektu, který potěší nejen majitele, ale i případné návštěvníky. Lokalita je mimořádně atraktivní – v blízkosti se nachází rekreační nádrž Lučina, historické město Strážnice s folklorním skanzenem, zámkem a Baťovým kanálem, proslulé vinné sklepy Plže v Petrově, a především oblíbená rozhledna Travičná se zábavním parkem a trail parkem pro cyklisty, který je od chalupy vzdálen pouhých 800 metrů. Okolí je jako stvořené pro pěší túry, cyklistiku, koupání, vinařskou turistiku i poznávání bohaté moravské kultury. V létě se zde konají tradiční folklórní slavnosti, a díky množství turistických cílů je oblast vyhledávanou destinací po celý rok. Chalupa je perfektní volbou pro každého, kdo touží po místě s duší, příběhem a potenciálem. Ať už hledáte klidné útočiště pro sebe a rodinu, nebo příležitost, která začne vydělávat hned od prvního dne, tato nemovitost Vám nabídne obojí. Nevyžaduje žádné další investice, je ihned obyvatelná a připravená sloužit svému novému majiteli. V případě zájmu nás neváhejte kontaktovat. Rádi Vám poskytneme další informace a domluvíme osobní prohlídku. Taková příležitost se objevuje jen zřídka.
Prodej chalupy, 120 m², pozemek 211 m², Tvarožná Lhota
Nabízíme k prodeji nádhernou, stylovou a plně vybavenou chalupu, která se nachází na klidném horním konci obce Tvarožná Lhota, v malebném podhůří Bílých Karpat. Tato nemovitost je ideální jak pro ty, kteří hledají útulné rodinné bydlení v krásném prostředí, tak i pro investory, kteří chtějí okamžitě začít s pronájmem bez jakýchkoli dalších vstupních nákladů. Chalupa je ve výborném technickém stavu a prodává se kompletně zařízená. Stačí si přivézt osobní věci a začít bydlet, nebo ihned pronajímat. Objekt nabízí pohodlné ubytování pro 4 až 8 osob. V patře se nacházejí dvě průchozí ložnice s celkem pěti lůžky, v přízemí je společenská místnost s dalšími třemi lůžky. K dispozici je vybavená kuchyň, koupelna s vanou a toaletou v přízemí, další WC se nachází v patře. Chalupa je vytápěna plynovým kotlem, což umožňuje celoroční využití. Velkou výhodou je ovládání kotle na dálku, v zimě tak přijedete do vyhřátého domu. Zahrada nabízí příjemné posezení pod pergolou a možnost grilování. Velkým bonusem je stylový vinný sklípek přímo v objektu, který potěší nejen majitele, ale i případné návštěvníky. Lokalita je mimořádně atraktivní – v blízkosti se nachází rekreační nádrž Lučina, historické město Strážnice s folklorním skanzenem, zámkem a Baťovým kanálem, proslulé vinné sklepy Plže v Petrově, a především oblíbená rozhledna Travičná se zábavním parkem a trail parkem pro cyklisty, který je od chalupy vzdálen pouhých 800 metrů. Okolí je jako stvořené pro pěší túry, cyklistiku, koupání, vinařskou turistiku i poznávání bohaté moravské kultury. V létě se zde konají tradiční folklórní slavnosti, a díky množství turistických cílů je oblast vyhledávanou destinací po celý rok. Chalupa je perfektní volbou pro každého, kdo touží po místě s duší, příběhem a potenciálem. Ať už hledáte klidné útočiště pro sebe a rodinu, nebo příležitost, která začne vydělávat hned od prvního dne, tato nemovitost Vám nabídne obojí. Nevyžaduje žádné další investice, je ihned obyvatelná a připravená sloužit svému novému majiteli. V případě zájmu nás neváhejte kontaktovat. Rádi Vám poskytneme další informace a domluvíme osobní prohlídku. Taková příležitost se objevuje jen zřídka.
Už vám nikdy nic neunikne
Dostávejte ty nejodolatelnější nabídky a zajímavosti ze světa nemovitostí přímo do svého e-mailu. Přihlaste se k odběru newsletteru.

Pavla Šimková