Prodej, Domy komerční, 111 m², ul.21. dubna, Valtice
Valtice
Popis nemovitosti
Exkluzivní investiční příležitost – zavedený apartmánový dům ve Valticích
V jedné z nejžádanějších vinařských lokalit jižní Moravy nabízíme k prodeji stylový apartmánový dům s fungujícím ubytovacím provozem, který představuje ideální spojení investice, podnikání i vlastního rekreačního zázemí.
Nemovitost se nachází v malebném prostředí Valtic, města vína, historie a turistiky, které je každoročně vyhledávaným cílem návštěvníků z celé České republiky i zahraničí. Díky silné turistické poptávce nabízí dům stabilní potenciál pravidelného výnosu z krátkodobých pronájmů.
Velkou přidanou hodnotou je, že součástí prodeje je zavedená klientela i funkční webová prezentace, což umožňuje plynulé převzetí provozu bez nutnosti budovat podnikání od začátku.
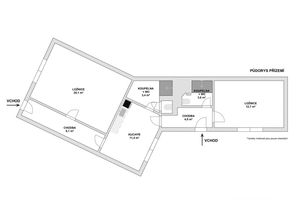
Nemovitost s promyšleným konceptem
Dům o užitné ploše 111 m², stojící na pozemku 228 m², je prakticky rozdělen na čtyři samostatné apartmány, které umožňují maximální flexibilitu využití.
Dispozice domu umožňuje:
• plnohodnotný komerční provoz ubytování
• kombinaci vlastního bydlení a podnikání
• pronájem po jednotlivých apartmánech nebo jako celek pro větší skupiny
Díky tomuto řešení lze velmi efektivně reagovat na poptávku hostů a optimalizovat obsazenost během celého roku.
Dispozice apartmánů:
Apartmány 1 a 2
Tyto apartmány mohou fungovat samostatně nebo jako jeden celek, což je ideální pro rodiny či větší skupiny hostů.
Apartmán 1 (kapacita 3 osoby)
• manželská postel
• samostatné lůžko
• vlastní koupelna (sprcha, WC, umyvadlo)
Apartmán 2 (kapacita 2 osoby)
• manželská postel
• koupelna (sprcha, WC, umyvadlo)
Apartmány sdílí plně vybavenou kuchyň a lze je oddělit uzamykatelnými dveřmi.
Apartmány 3 a 4
Samostatná část domu se společným vstupem, ideální pro společné pobyty přátel či rodin.
Apartmán 3 (kapacita 2 osoby)
• oddělené postele s možností spojení
• vlastní kuchyňka
• samostatné WC
Apartmán 4 (kapacita 3 osoby – v patře)
• manželská postel
• samostatné lůžko
• kuchyňka
• samostatné WC
Každý apartmán disponuje vlastním zázemím. Ideální pro skupinové rezervace.
Valtice jsou součástí Lednicko-valtického areálu, zapsaného na seznamu UNESCO, a dlouhodobě patří mezi nejvyhledávanější turistické destinace na jižní Moravě.
Hosté zde vyhledávají:
• vinařskou turistiku
• cyklostezky mezi vinicemi
• historické památky
• gastronomii a kulturní akce
To vše zajišťuje stabilní poptávku po kvalitním ubytování po většinu roku.
Hlavní benefity investice
- prestižní turistická lokalita
- zavedený a funkční ubytovací provoz
- okamžitý potenciál výnosu
- flexibilní využití nemovitosti
- možnost dalšího rozvoje a marketingu
Možnosti využití
• investiční apartmánový dům
• kombinace vlastního bydlení a podnikání
• rekreační objekt pro rodinu
• vícegenerační bydlení
• pronájem přes platformy Airbnb nebo Booking
Tato nemovitost není pouze domem – představuje fungující projekt s potenciálem dalšího růstu v jedné z nejatraktivnějších vinařských oblastí České republiky.
Kde se nemovitost nachází?
Chcete si rovnou spočítat hypotéku?
Informace o nemovitosti
Naplánujeme prohlídku?
Podobné nemovitosti
Prodej, Komerční Prostor, 1061 m², ul.tř. Masarykova, Veselí nad Moravou
Prodej komerčního prostoru – 1 061 m², tř. Masarykova, Veselí nad Moravou INVESTIČNÍ PŘÍLEŽITOST, KTERÁ DÁVÁ SMYSL DNES I ZA 20 LET Nabízíme k prodeji výjimečnou multifunkční budovu o celkové ploše 1 061,2 m², situovanou přímo u hlavní silnice ve městě Veselí nad Moravou. Objekt s výbornou viditelností, dostupností a vlastním krytým parkováním představuje ideální příležitost pro investory, podnikatele i developery, kteří hledají stabilní výnos, diverzifikaci příjmů a dlouhodobé zhodnocení kapitálu. Budova je rozdělena do tří nadzemních podlaží, která lze využívat samostatně nebo jako jeden promyšlený celek: 1. nadzemní podlaží (372,5 m²) – ideální pro zdravotnické centrum s více ordinacemi, kliniku, rehabilitační zařízení, lékárnu, showroom, obchodní prostory nebo jakoukoli službu s vysokou návštěvností. Díky poloze u hlavního tahu získáte přirozený marketing a stálý pohyb klientů. 2. nadzemní podlaží (369,4 m²) – vhodné pro kanceláře, coworkingové centrum, sídlo společnosti, školící prostory nebo administrativní část navazující na komerční provoz. 3. nadzemní podlaží (319,3 m²) – prostor pro vybudování prostorných bytových jednotek či investičních apartmánů k dlouhodobému pronájmu. Kombinace komerčních prostor v dolních patrech a rezidenčního bydlení v horní části objektu vytváří funkční investiční model s vícezdrojovým cashflow, který snižuje riziko výpadku příjmů a současně zvyšuje celkovou návratnost projektu. Kryté parkování přináší komfort pro klienty i rezidenty a výraznou konkurenční výhodu na trhu. Tato nemovitost není jen budova – je to projekt s jasnou vizí, obrovským množstvím možností využití a potenciálem generovat stabilní výnos po mnoho let. Pokud hledáte investici, která spojuje strategickou polohu, flexibilitu využití a perspektivu dlouhodobého růstu hodnoty, ráda vám představím veškeré detaily osobně. Jana Kutná Nemovision reality
Prodej, Komerční Obchodní prostory, 168 m², ul.Koliště, Brno
Komerční prostor v centru Brna s potenciálem showroomu či reprezentativního sídla firmy – 168 m², ulice Koliště Hledáte prostor, který nebude jen „místem k podnikání“, ale skutečnou vizitkou vaší značky? Nabízíme k prodeji komerční prostor o výměře 168 m² + mezonetový prostor, na prestižní adrese v širším centru Brna – ulice Koliště. Lokalita s vysokou frekvencí pohybu a výbornou dostupností dává tomuto prostoru výrazný obchodní potenciál. Proč právě tento prostor? - velkorysá plocha 168 m² + mezonetový prostor o výměře 133 m² - výborná viditelnost a dostupnost - možnost úpravy přesně podle vašich potřeb Ideální pro: - design showroom - prodejnu - studio / atelier - reprezentativní kanceláře Potenciál prostoru: Prostor je aktuálně ve stavu vhodném k rekonstrukci, což vám dává jedinečnou příležitost vytvořit interiér přesně podle vaší značky a konceptu. Díky své dispozici a výšce nabízí ideální základ pro moderní, vzdušný prostor s výrazným designovým charakterem. Lokalita, která prodává: Ulice Koliště představuje strategické spojení centra města s výbornou dopravní dostupností. V okolí se nachází kompletní občanská vybavenost, kancelářské budovy i obchodní prostory. Prostor je možné zakoupit samostatně, nebo v kombinaci s vedlejší jednotkou a vytvořit tak velkorysý celek. Neváhejte mě kontaktovat – ráda vám prostory osobně představím a zodpovím veškeré dotazy.
Prodej, Komerční Obchodní prostory, 177 m², ul.Koliště, Brno
Komerční prostor v centru Brna s potenciálem showroomu či reprezentativního sídla firmy – 177 m², ulice Koliště Hledáte prostor, který nebude jen „místem k podnikání“, ale skutečnou vizitkou vaší značky? Nabízíme k prodeji komerční prostor o výměře 177 m² + mezonetový prostor, na prestižní adrese v širším centru Brna – ulice Koliště. Lokalita s vysokou frekvencí pohybu a výbornou dostupností dává tomuto prostoru výrazný obchodní potenciál. Proč právě tento prostor? - velkorysá plocha 177 m² + mezonetový prostor o výměře 105 m² - výborná viditelnost a dostupnost - možnost úpravy přesně podle vašich potřeb Ideální pro: - design showroom - prodejnu - studio / atelier - reprezentativní kanceláře Potenciál prostoru: Prostor je aktuálně ve stavu vhodném k rekonstrukci, což vám dává jedinečnou příležitost vytvořit interiér přesně podle vaší značky a konceptu. Díky své dispozici a výšce nabízí ideální základ pro moderní, vzdušný prostor s výrazným designovým charakterem. Lokalita, která prodává: Ulice Koliště představuje strategické spojení centra města s výbornou dopravní dostupností. V okolí se nachází kompletní občanská vybavenost, kancelářské budovy i obchodní prostory. Prostor je možné zakoupit samostatně, nebo v kombinaci s vedlejší jednotkou a vytvořit tak velkorysý celek. Neváhejte mě kontaktovat – ráda vám prostory osobně představím a zodpovím veškeré dotazy.
Už vám nikdy nic neunikne
Dostávejte ty nejodolatelnější nabídky a zajímavosti ze světa nemovitostí přímo do svého e-mailu. Přihlaste se k odběru newsletteru.

Pavla Šimková