Prodej, Komerční Obchodní prostory, 177 m², ul.Koliště, Brno
Brno
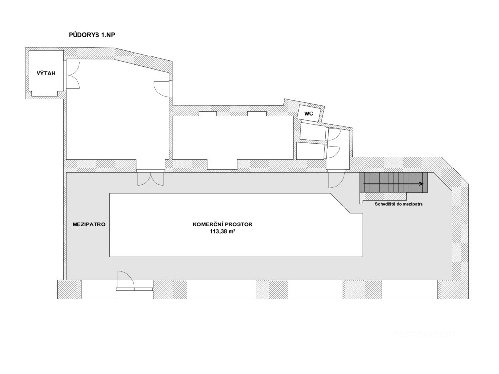
Popis nemovitosti
Komerční prostor v centru Brna s potenciálem showroomu či reprezentativního sídla firmy – 177 m², ulice Koliště
Hledáte prostor, který nebude jen „místem k podnikání“, ale skutečnou vizitkou vaší značky?
Nabízíme k prodeji komerční prostor o výměře 177 m² + mezonetový prostor, na prestižní adrese v širším centru Brna – ulice Koliště. Lokalita s vysokou frekvencí pohybu a výbornou dostupností dává tomuto prostoru výrazný obchodní potenciál.
Proč právě tento prostor?
- velkorysá plocha 177 m² + mezonetový prostor o výměře 105 m²
- výborná viditelnost a dostupnost
- možnost úpravy přesně podle vašich potřeb
Ideální pro:
- design showroom
- prodejnu
- studio / atelier
- reprezentativní kanceláře
Potenciál prostoru:
Prostor je aktuálně ve stavu vhodném k rekonstrukci, což vám dává jedinečnou příležitost vytvořit interiér přesně podle vaší značky a konceptu.
Díky své dispozici a výšce nabízí ideální základ pro moderní, vzdušný prostor s výrazným designovým charakterem.
Lokalita, která prodává:
Ulice Koliště představuje strategické spojení centra města s výbornou dopravní dostupností. V okolí se nachází kompletní občanská vybavenost, kancelářské budovy i obchodní prostory.
Prostor je možné zakoupit samostatně, nebo v kombinaci s vedlejší jednotkou a vytvořit tak velkorysý celek.
Neváhejte mě kontaktovat – ráda vám prostory osobně představím a zodpovím veškeré dotazy.
Kde se nemovitost nachází?
Chcete si rovnou spočítat hypotéku?
Informace o nemovitosti
Naplánujeme prohlídku?
Podobné nemovitosti
Prodej, Komerční Ubytování, 501 m², ul.U Viaduktu, Brno - Chrlice
Představte si, že vlastníte penzion v příjemné lokalitě, kam se hosté rádi vracejí. Chcete rozšířit své podnikání o zavedený podnik, který si už nyní drží vynikající hodnocení na ubytovacích portálech? Pak vítejte v penzionu Ruland! Tento penzion je oázou klidu, obklopen zelení, kde si každý může odpočinout od shonu města. Místo, které si oblíbily především klienti na své služební cesty. Současný majitel vytvořil prostředí s rodinnou atmosférou a skvělým servisem. Teď čeká na nového majitele, který chce pokračovat v jeho tradici nebo vtiskne vlastní styl do tohoto úžasného místa. Penzion je připraven k okamžitému provozu, v roce 2009 byl vystavěn, v roce 2010 otevřen a je kompletně vybaven. Chcete převzít provoz nebo ho přizpůsobit vlastním představám? Tady to můžete mít vše! Provoz penzionu není přerušen a je možné v činnosti plynule pokračovat! Penzion nabízí 13 lůžek v 7 pokojích. Pomocí přistýlek je možné navýšit kapacitu až pro 16 osob. Personál má vlastní zázemí, a pro hosty je připraveno parkoviště s kapacitou pro 12 vozů. Restaurace pojme až 26 hostů uvnitř a dalších 20 na terase, což přitahuje nejen turisty a výletníky z okolí. Součástí penzionu je i pergola s udírnou a posezením a přilehlá zahrada pro vaše další nápady. Brno láká návštěvníky po celý rok. Penzion je ideální svou polohou, protože se nachází nedaleko dálnice D1, D2 a má výbornou dostupnost do centra města. Ať už sníte o provozování penzionu, rodinném sídle v přírodě nebo skvělé investici, toto místo nabízí nekonečné možnosti. Prohlédněte si penzion, nadechněte se jeho jedinečné atmosféry a nechte se inspirovat. Máte pocit, že tohle je vaše příležitost? Přijeďte a poznejte kouzlo tohoto místa na vlastní oči.
Prodej, Komerční Prostor, 1061 m², ul.tř. Masarykova, Veselí nad Moravou
Prodej komerčního prostoru – 1 061 m², tř. Masarykova, Veselí nad Moravou INVESTIČNÍ PŘÍLEŽITOST, KTERÁ DÁVÁ SMYSL DNES I ZA 20 LET Nabízíme k prodeji výjimečnou multifunkční budovu o celkové ploše 1 061,2 m², situovanou přímo u hlavní silnice ve městě Veselí nad Moravou. Objekt s výbornou viditelností, dostupností a vlastním krytým parkováním představuje ideální příležitost pro investory, podnikatele i developery, kteří hledají stabilní výnos, diverzifikaci příjmů a dlouhodobé zhodnocení kapitálu. Budova je rozdělena do tří nadzemních podlaží, která lze využívat samostatně nebo jako jeden promyšlený celek: 1. nadzemní podlaží (372,5 m²) – ideální pro zdravotnické centrum s více ordinacemi, kliniku, rehabilitační zařízení, lékárnu, showroom, obchodní prostory nebo jakoukoli službu s vysokou návštěvností. Díky poloze u hlavního tahu získáte přirozený marketing a stálý pohyb klientů. 2. nadzemní podlaží (369,4 m²) – vhodné pro kanceláře, coworkingové centrum, sídlo společnosti, školící prostory nebo administrativní část navazující na komerční provoz. 3. nadzemní podlaží (319,3 m²) – prostor pro vybudování prostorných bytových jednotek či investičních apartmánů k dlouhodobému pronájmu. Kombinace komerčních prostor v dolních patrech a rezidenčního bydlení v horní části objektu vytváří funkční investiční model s vícezdrojovým cashflow, který snižuje riziko výpadku příjmů a současně zvyšuje celkovou návratnost projektu. Kryté parkování přináší komfort pro klienty i rezidenty a výraznou konkurenční výhodu na trhu. Tato nemovitost není jen budova – je to projekt s jasnou vizí, obrovským množstvím možností využití a potenciálem generovat stabilní výnos po mnoho let. Pokud hledáte investici, která spojuje strategickou polohu, flexibilitu využití a perspektivu dlouhodobého růstu hodnoty, ráda vám představím veškeré detaily osobně. Jana Kutná Nemovision reality
Prodej, Komerční Kanceláře, 501 m², ul.U Viaduktu, Brno - Chrlice
Hledáte vhodné reprezentativní sídlo Vaší společnosti v dobré dostupnosti do centra město nebo dálnice D1? Tento objekt aktuálně fungující jako penzion je možné přestavět a využít jeho široký potenciál pro podnikání nebo například i pro bydlení. Budova je elegantní a reprezentativní, nabízí mnoho možností, jak ji přizpůsobit svým vlastním touhám a představám. Budovu naleznete v Chrlicích odkud se rychle dostanete na dálnice D1 nebo D2. Dojezd z centra Brna trvá přibližně 12 minut. Užitná plocha budovy je 501 m2. Velkou výhodou je průjezd do vnitrobloku, kde naleznete další místa k zaparkování, terasu, pergolu a rozlehlou zahradu o rozloze 1827 m2. V přízemí se aktuálně nachází restaurace, která jde přestavět např. na showroom, nebo obchodní prostor pro možné schůzky s klienty a obchodními partnery. V suterénu se nachází zázemí penzionu (kuchyně, sklady apod.) V 1. a ve 2. patře naleznete 7 plně vybavených pokojů, které lze využít i jako kanceláře. Parkování pro klienty lze řešit před domem, pro zaměstnance za domem v zahradě. S větším zásahem tu můžete vytvořit prakticky cokoli. Co Vás napadá? Jak máte chuť tento prostor využít? Technické parametry: - zateplení budovy i střechy - 2 plynové kondenzační kotle - plastová okna s dvojsklem - klimatizace ve všech pokojích - vzduchotechnika v restauraci a jiné. Pokud vás zajímá více informací, ráda vám poskytnu odkaz na detailní web. Objevte prostor, který nabízí široké možnosti využití pro podnikání i bydlení. Budu se na Vás těšit.
Už vám nikdy nic neunikne
Dostávejte ty nejodolatelnější nabídky a zajímavosti ze světa nemovitostí přímo do svého e-mailu. Přihlaste se k odběru newsletteru.

Pavla Šimková